Установка проставок рама-рессоры УАЗ Патриот
- Содержание:
- Чертежи проставок рама-рессоры УАЗ Патриот
- Проставки под серьги рессор УАЗ (30 мм) - видео
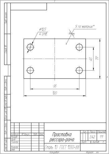
Лифтовать кузов и подвеску не буду, но увеличить артикуляцию *опы и избавиться от шорканья задних колёс об арки надо. Поэтому были прикуплены проставки 50мм (40 не было, 60 много) из капралона + 8 болтов, в один из заездов в деревню — внедрил. Нам потребуются: — домкрат и чурбаки (если есть хайджек — отлично) — ключи на 14 и на 17 снимаем бампер, откручиваем 8 болтов крепления рессоры, домкратимся, пока рессора не отойдёт от площадки на расстояние позволяющее вставить проставку. Вставляем болты и отпускаем домкрат — всё :) Итог — машина подняла корму, колёса не чиркают подкрылки (полностью этого не избежать, но в 80% когда это было раньше, сейчас не наблюдается)Домкратим рамуОткручиваем рессорыВставляем проставкуЦена вопроса: 1 250Чертежи проставок рама-рессоры УАЗ Патриот
Проставки были выточены вот по этому чертежу история про проставки и чертёж он немного отличается от остальных тем что отверстия под болты я сверлил впритык под болт 10 а не как у многих 12мм зачем лишняя болтанка не понимаю? У меня всё встало без усилий и сверлений как я опасался.![]()
![]()
Проставки под серьги рессор УАЗ (30 мм) - видео
Читайте также на сайте:

















